本节与FC无关!
标准图修改成图的共同原则:
做到结构图和钢筋图参数化,使用时不需要修改结构图纸,只修改如下结构参数表格和钢筋参数表格

钢筋表中输入的单根长及根数等内容,需要和EXCEL表格计算配合,因此,标准图包含图纸和excel表格,excel表格和图中的表格保持一致。
结构图中的参数需和提供的模板的参数类似,比如高程用Z表示,高度用h等标识。
标准图图纸编号从01号开始,01为定位图及地质信息图,往后编制,说明内图纸编号对应,方便以后大家使用标准图不会出错,说明需要修改的地方用红色标识。
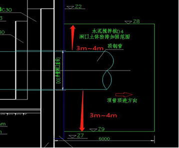
洞口加固平面范围
洞口加固高程范围:洞外径上下间距3~4m
钢筋保护层厚度:梁(冠梁,支撑,腰梁)35mm,底板50mm,灌注桩50mm,内衬墙,沉井井壁50mm,连续墙70mm
梁的箍筋弯钩的长度统一一边用13d,两边26d
圆形箍筋统一用12d
内衬或者井壁穿洞口的钢筋,在备注里说明遇洞口截断即可,上下或者左右不需多个钢筋符号。
洞口开孔直径:
出发洞口如下图:
接受洞口:

工程量表如何统一至参数钢筋表:把工程量表拷到钢筋表,单独成表,然后把参数列链接到顶管特性表即可

表中箍筋及拉筋为内皮标注,其余为外皮标注
双向出发、出发接收或者接收的井的管中心高程需设不同参数,很多时候是不同高程。
腰梁及支撑箍筋加密区按下表7度执行。
已经开发了通过excel参数将钢筋图中的尺寸参数表达式转换为数值的程序,图纸中参数表达式:
变量可以为一个大写或小写字母(a、b、c、h、H)、一个大写或小写字母和一位数字(H1、h2)、两个字母(hb);不能是数字加字母,不能超过2位;不能用A1,这个是角度标注的标志。
钢筋上的参数表达式,如果为长度区间,中间波浪号或者斜杆须为一个独立字符,不要和前后表达式联为一个字符串,这样可以转化为数值;
表达式中间的乘号不要省略,比如35d,用35d;——由于每根钢筋直径不同,所以程序无法做到把每个d都转成数值,所以,钢筋表中钢筋型式上的参数表达式暂时不好转换。
参数表中,必须按 序号-名称-符号(变量)-单位-数值,程序搜索符号(变量),往后偏移2列 获取参数数值。
在图纸右下角,图签左侧,写上“本套参数化标准图版权归 *** 所有,未经授权,不得使用。只写 具体制图和设计的人名,校核和审查的人不写。
1.箍筋的弯够长度,约13d 依据:
《水工混凝土施工规范》

箍筋的弯后直段约为10d。

从上图可以看出,箍筋弯曲部分的标注长度与实际长度是有差别的,实际长度应该是fe,而标注成了R+d,这两个的差值,就应该是我们要计算的弯曲增加值。用公式可以写成:弯曲增加值=fe-(R+d)。
而这里弧长fe所在圆的直径=(R+d/2)*2,很容易计算出135度角的弧长是:
fe=[(R+d/2)×2×π/360×135],
fe-(R+d)=[(R+d/2)×2×π/360×135]-(R+d)
常见箍筋的弯曲半径R=1.25d代入
fe-(R+d)=1.9d
再加上箍筋的末端直段长度10d,就变成了11.9d,因此如是外皮标注,箍筋应算长度为11.9d,如是内皮,需增加d,则约为13d合适。
2.180°弯钩 约7d依据:
《水工混凝土施工规范》
3.90°弯钩
0°
最后编辑:秦晓川 更新时间:2026-03-03 15:41