为了增强FC在水利复杂工程中的应用信心,特意在周末花了约8个小时建立下面这个参数化模型。逻辑梳理的还可以。
第一天4个小时从头到尾建立模型后发现思维比较乱,经过第一次第二次第三次调整,总共画了四次,思路清晰多了。这种参数化依赖关系的建模,必须手动去做一遍或几遍才能有思路,纯想象,在没有经验的情况下,比较难。
1. 多工程类比,找规律
我们尽量找多一些类似立式蜗壳离心泵站施工图来对比,找出哪些不同,从而策划参数
参数化就是为了普适,不是为了某一个特定工程的。
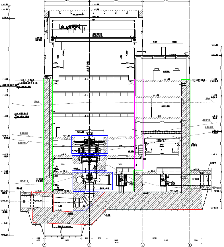
如下,是某重点工程中的2个泵站,可以发现其中的共同点。
2. 建模整体思路
我们以其中一个做分析。走过一次弯路后,反复思考,终于找到一个认为比较好的思路。
选择泵站厂房中间段先,左边段和右边段在此基础上做修改,最后再装配。
先做周边的砼,比如底板,上下游水下墙,中间的低矮墩墙——再做中间低矮墩墙上的柱子——再将机组的砼墩建立起来——然后阵列这个机墩——最后做楼板(是厚板,所以简单了);中间机墩这个连续建立起来的好处是,阵列的时候选择对象比较清晰;另外就是楼板增料遇到这个墩,自动布尔运算“绕过去”,perfect!
3. 建模步骤
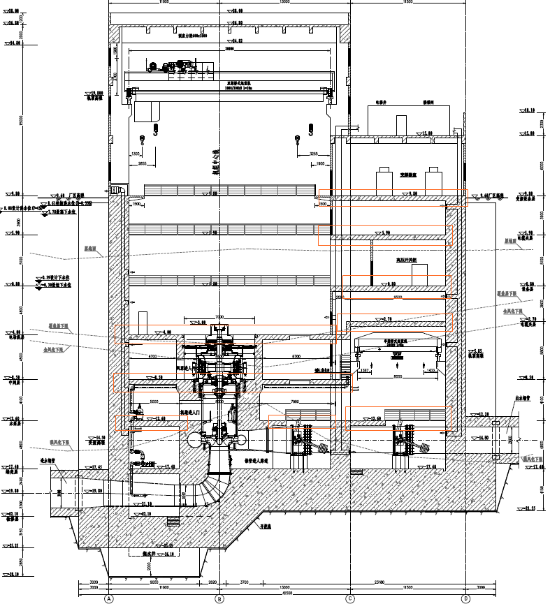
第一步将底板和水下墙通过断面增料
红色和绿色线框部分(横断面增料)——粉色柱子(平面投影向上增料)——蓝色机墩(一层层用平面投影向上增料)
顺便把上下游的管道画好,因为要阵列机墩之类的,索性全部画好,方便一次性阵列。

第二步阵列机墩后就可以做楼板了
下图浅黄色线框(上游墙上绘制矩形,向下游方向增料——尺寸用直到面——选择中间墩面或柱子的下游面)
中间成果
下一步做蜗以及楼板开孔,墩墙开孔。有些细部不需要参数化,我们参数化的目的是提高建模效率和建模乐趣,细部的可后期在参数化驱动后的基础上进行增加。
完成模型逻辑后,再关联表格参数。
然后完成厂房左边段和右边段参数化。

4. 难点
(1)需要注意的地方是机墩渐变那里
解释:因为官方版本不允许建立脱离体,即每一个体必须和已有的体相连才行。
所以当建立到下方小直径圆墩后,利用小圆墩上表面建立基准面,这个基准面向上偏移比如1m,在此基准面上绘制草图,绘制2个圆圈。结束草图。
回到模型里,选中下方小圆墩上表面,——增料放样——添加截面里选择刚才建立的草图(切换回模型里选择左侧栏中的sketch),如下图。
还有个问题,刚才草图中绘制的2个圆的顺序会影响这个增料放样结果。如果发现生成的模型出现异常,回到草图里,将里面的圆半径变大,外面的圆半径变小。应该可以了。
link版本就方便了,建完下方小直径圆筒,再建上方大直径圆筒,它们可以脱离。然后再将它们之间的面放样进行连接即可。

5. 依赖关系图局部
不用关心这个。

最后编辑:秦晓川 更新时间:2026-03-03 15:41